top of page

Proyectos
MAD S.A.
Descripción
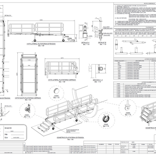
Este proyecto consiste en el diseño y verificación mecánica/estructural de una nueva plataforma móvil para reemplazar la plataforma fija existente en terreno. Su función principal es la de conectar terreno con el acceso al molino para realizar mantenimiento, pero con la condición de que, una vez realizada esta tarea la plataforma pueda ser retirada sin mayores problemas. El desarrollo del proyecto ha incluido la elaboración de memoria cálculo, planos de fabricación y un modelo detallado realizado con software Tekla Structures.
Proveedores
Clientes

Tecnologías
Softwares


Galeria
bottom of page




















